Schema CAD, Programmierung, Planung und Beratung

Dienstleistungen im Bereich Schema CAD, Programmierung für Kundenlösungen, sowie Planung und Beratung in verschiedenen Bereichen.

Schema CAD, Programmierung, Planung und Beratung

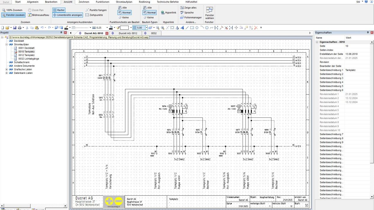
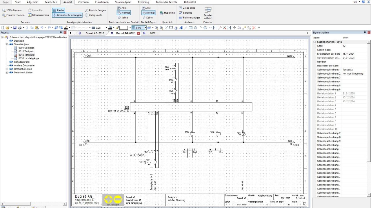
Die Dokumentation von Schaltanlagen und Steuerungen sollte stets nachvollziehbar und aktuell sein

Für neue und bestehende Verteilungen zeichnen wir Ihnen ein übersichtliches und professionelles Elektroschema.

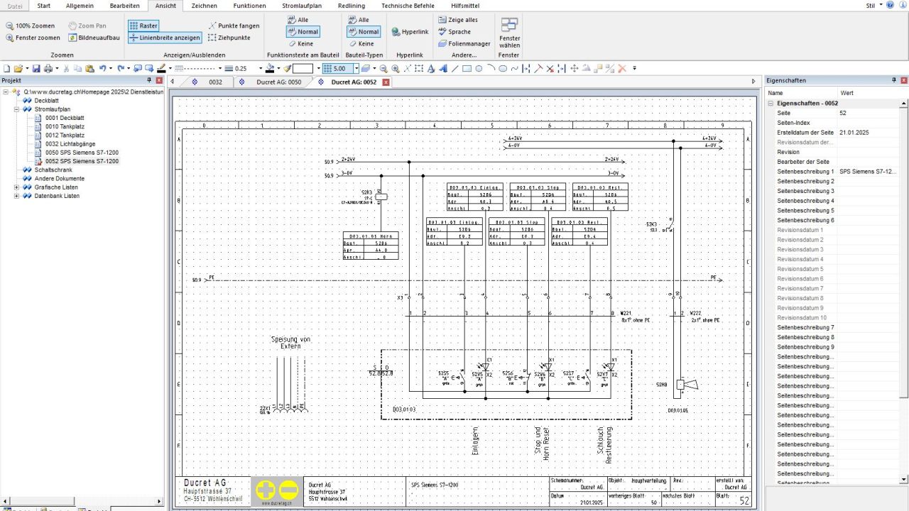
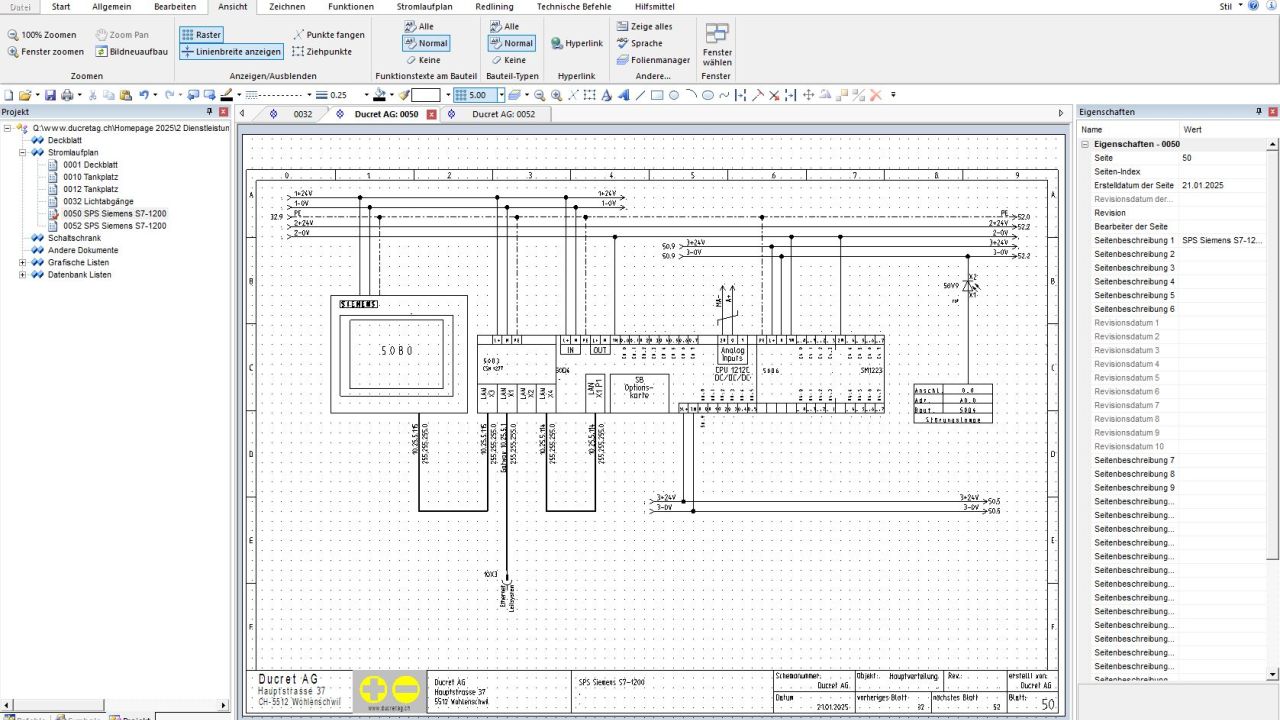
Im Bereich Kundenlösungen bieten wir Ihnen individuelle Steuerungsabläufe mit Programmierung Siemens S7, inklusive Dokumentation.

  • Schema CAD
  • Schema CAD für bestehende Anlagen (Aufnahme und Besprechung vor Ort)
  • Programmierung Siemens S7 (individuelle Kundenlösungen)
  • Planung und Beratung

Bildergalerie

Weitere Dienstleistungen

Energieverteilungen / Schaltanlagen

Energieverteilungen, Schaltanlagen

Planung und Herstellung von Niederspannungsverteilanlagen bis 1250A (Konventionelle Bauweise) oder Systemverteilanlagen bis 1600A.

Umbauten / Nachrüstungen / Servicearbeiten

Umbauten, Nachrüstungen, Servicearbeiten

Planung und Umsetzung von Umbauten/Nachrüstungen an bestehenden Energieverteilungen und Steuerungen.

Elektrosteuerungen

Elektrosteuerungen

Planung, Programmierung und Herstellung von Elektrosteuerungen in allen Bereichen.

Lieferung und Montage

Lieferung und Montage

Termingerechte Auslieferung und Montage.

PM913 Fräsmaschine Schaltanlagenbau

PM913 Fräsmaschine Schaltanlagenbau

Unsere Kunststoffplatten-Fräsmaschine PM913, massgeschneidert für die Anforderungen im Schaltanlagenbau, wird bei uns und unseren Kunden seit über 30 Jahren eingesetzt.

Haben Sie Fragen?

Wir beraten Sie gerne, herzlich und unverbindlich.

Rufen Sie uns an oder schreiben Sie uns eine E-Mail.